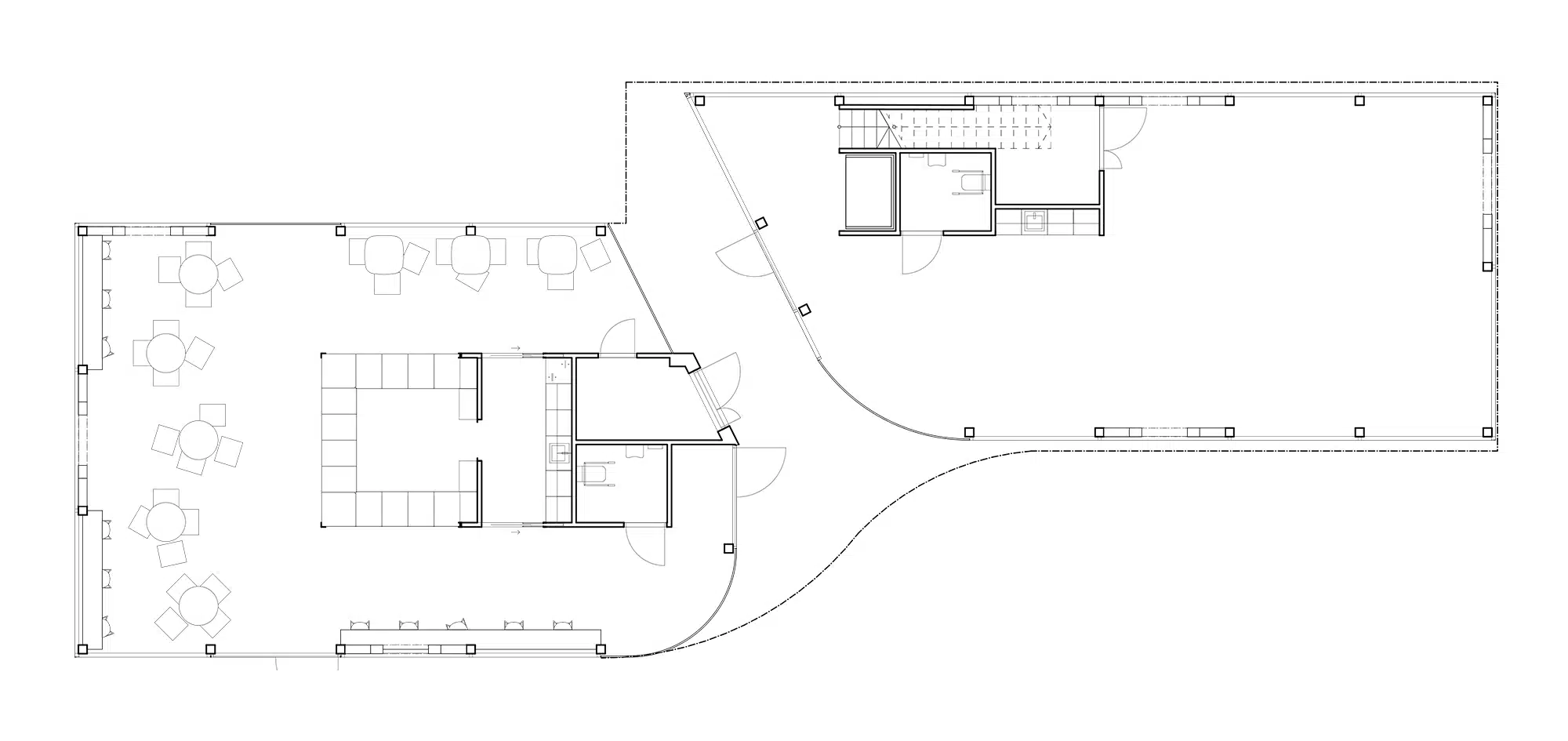
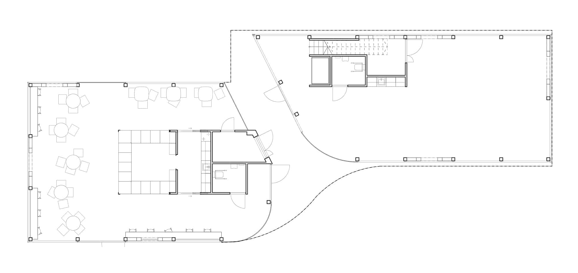
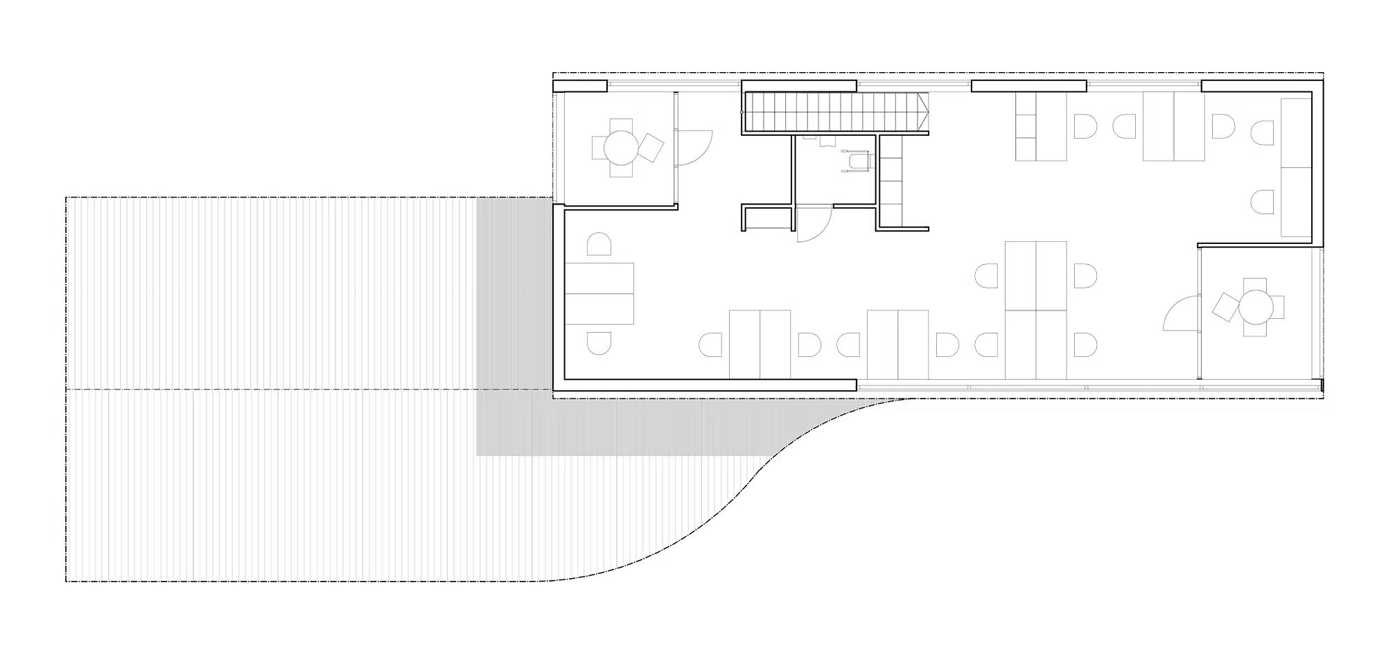
Torgbygg, Tolvsrød
Sentralt på Tolvsrød Torg, langsmed eksisterende nord/syd gående grønnstruktur planlegges det et torg. Feltet opparbeides med høy kvalitet på overflater og beplantning. Torget med torgbygg utgjør bydelssenterets sosiale fokus.
Bygningen vil få en fleksibel utforming og innholdet er tenkt programmert i dialog med lokalområdet. Torgbygget planlegges oppført i massivtre, med eksponert tre i fasade og på tak, samt store glassfelt og åpninger ut mot fellesarealer på hver side av bygget.
Oppdragsgiver: Eiendomsutvikler, Folksom AS
Program: Torgbygg/grendehus
Status: Til kommunal behandling


